• rkd.
  • Menu

rachel kelly designs

  • rkd.
stables&street_collage_72dpi.jpg
bywater_detail_FP.jpg
RCP.jpg
rendering_middleroom.jpg
rendering_marketroom.jpg
Ottoman_bywatertoile.jpg
ottoman_sq_toile_blue&pink.jpg
1 2 3 4 5 6 7

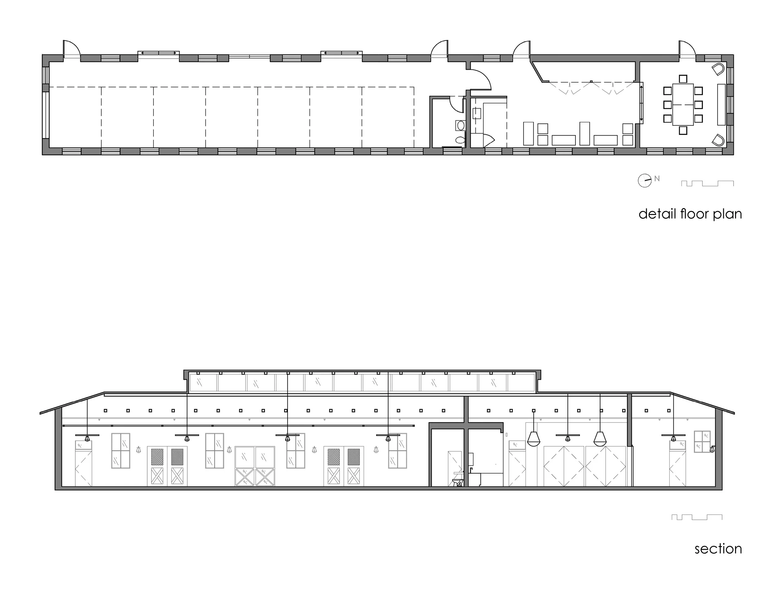
Bywater Community Center

This community center, located in an abandoned stables building in New Orleans, is proposed to unite its Bywater neighborhood  and to serve as a beacon for the regrowth and redevelopment of the district. After conducting user group surveys and interviews with the Bywater Neighborhood Association, it was determined that the community center design needed to be flexible and durable, while maintaining the quirkiness of the neighborhood character. A dropped trellis structure in the main space reflects the footprint of the former stables, while reclaimed wood and walls reflect the concept of "honoring the patina", which arose from the neighborhood's desire to "renovate but not destroy" the stables. A custom textile, Bywater Toile, was designed for flexible indoor/outdoor furnishings; like a traditional toile, it tells the story of the Bywater in a color palette that reflects the vibrant vernacular architecture.

Media used: AutoCAD, Sketchup, Photoshop

Rachel Kelly, MFA Interior Design, Savannah College of Art and Design. ​